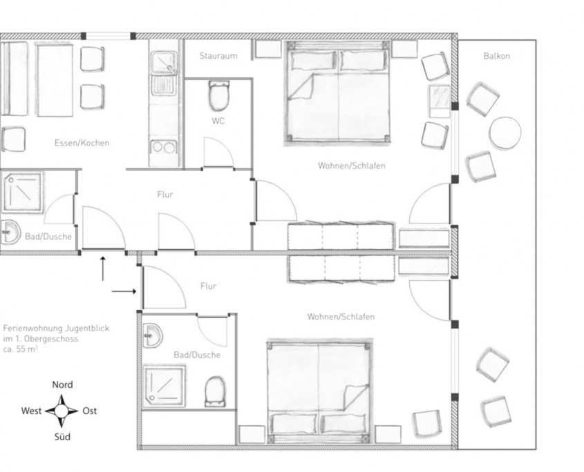
Ferienwohnung Jugetblick ***
für 4 Personen, ca. 55 qm
Unsere schöne und gemütliche Ferienwohnung „Jugetblick“ mit Balkon ist mit einem Wohn-Schlafraum und einer Koch-Essecke ausgestattet. Neben einem Bad mit Dusche und separatem WC befindet sich, durch eine Verbindungstür getrennt, ein zweiter Wohn-Schlafraum mit Dusche und WC.
Mindestaufenthalt 7 Tage
Anreise ab 15:00 Uhr, Abreise bis 10:00 Uhr
Nichtraucherwohnung und keine Haustiere
Ausstattung
- Einbauküche mit Kühlschrank und Herd, Kaffeemaschine, Wasserkocher, Eierkocher
- Putz- und Spülmittel, Geschirrtücher
- Bettwäsche, Hand- und Duschtücher, Föhn
- Sat-TV, Radio
- Kinderbett und Hochstuhl auf Anfrage
Grundriss
Preise
Verfügbarkeit



















